✨Residenza Montegrappa4 a Rovereto!
Ultimissimi appartamenti disponibili in pronta consegna
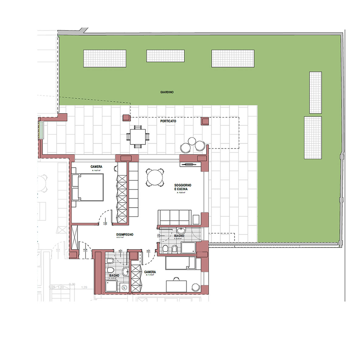
Splendido Trilocale con grande giardino, due camere da letto, due bagni, ampio soggiorno e cucina.
Realizzato con materiali e tecniche all’avanguardia in PRONTA CONSEGNA 🏡 Chiama 0464.423570







